- ¡En oferta!
- -10%
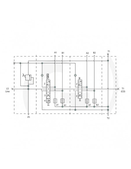
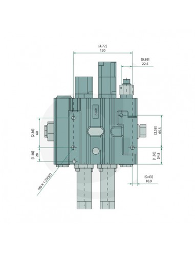
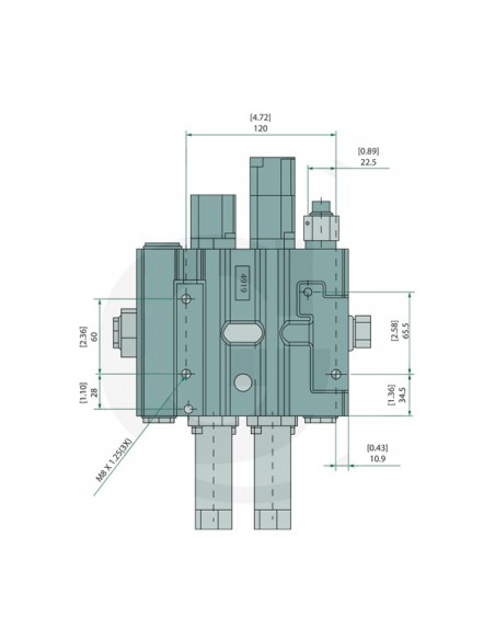
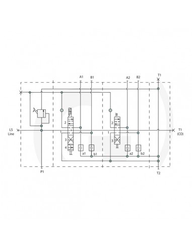
Válvula del cargador frontal para montar en el soporte del cargador frontal, con campanas de conexión para tiradores de cable. La disposición de las conexiones de trabajo permite un acoplamiento múltiple más rápido de la serie 2PS06-4. La válvula está conectada en paralelo y tiene una válvula antirretorno para retener la carga en cada sección. Es adecuado para Load Sensing y tiene dos funciones de doble acción, una de las cuales tiene una posición flotante y un bloqueo
Presión de funcionamiento: máx. 250 bar, presión de retorno (T) máx. 10 bar
Caudal nominal: máx. 90 l/min
Flujo de presión: Aceite mineral según DIN 51524 (HLP) con una viscosidad de 10 - 75 mm / s². Grado máx. De contaminación admisible clase 9 según NAS 1638 o 19/16 según ISO 4406
Margen de temperatura -20°C a +80°C
Material: Bloque de válvulas de hierro fundido de alta resistencia, corredera de válvula cromado duro, juntas de NBR
- Peso:
- 0,0000
